Scullery - Single Storey - House Designs Perth

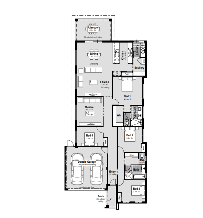
Welcome to contemporary living in Perth with our versatile single-storey house designs, offering both 4-bedroom, 2-bathroom, and 3-bedroom, 2-bathroom options. Each residence features a highly sought-after scullery, enhancing the functionality and style of your kitchen.
Indulge in the grandeur of a chef’s kitchen, adorned with elegant stone benchtops, transforming your culinary space into a masterpiece. Every home includes a spacious 2-car garage, seamlessly blending convenience and style in a single-storey design.
Step into the inviting alfresco area, where indoor and outdoor living merge effortlessly, creating a perfect space for relaxation or entertaining. Luxuriate in the meticulously designed hobless showers, showcasing attention to detail and contemporary sophistication. Stay comfortable year-round with the convenience of reverse cycle ducted air conditioning, ensuring an optimal living environment in every season.
Our single-storey house designs redefine modern living, providing a perfect fusion of style and practicality. Whether you choose the expansive 4-bedroom layout or the cozy charm of a 3-bedroom design, these homes cater to diverse lifestyles. The addition of a scullery enhances the chef’s kitchen, offering an organized and efficient space for culinary enthusiasts.
Choose sophistication, choose modernity – explore our single-storey house designs, where every detail caters to the finest in contemporary living. Embrace the future of home architecture in Perth with these thoughtfully designed residences. From the spacious 2-car garage to the chef’s kitchen, scullery, and the alfresco, each aspect is a testament to our commitment to excellence in house design.
Welcome to a world where luxury meets practicality in our single-storey house designs in Perth. Your dream home awaits, blending comfort and style seamlessly in the vibrant city of Perth. Discover the ideal blend of space, functionality, and modern luxury in these homes that epitomize the best in Perth house designs.
- All
- 10m Wide Frontage – Double Storey
- 12.5m Wide Frontage - Single Storey
- 12.5m Wide Frontage – Double Storey
- 15m Wide Frontage - Single Storey
- 17m 18m & 20m+ Wide Frontage - Single Storey
- Award Winning - House Designs Perth
- Double 2 Storey House Designs Perth
- Rural Farm - House Designs Perth
- Single Storey - House Designs Perth









